Descrizione
Das geplante Neubauprojekt befindet sich an ruhiger und sonniger Wohnlage am Meierweg 72 in Riehen. Das Mehrfamilienhaus hat 6 topmoderne Eigentumswohnungen in gehobenem Standard, Hobbyräume und für jede Wohnung einen Gartenanteil zur privater Nutzung.
Die Baubewilligung wurde bereits erteilt.
Ab Juni 2025 sind die Wohnungen einzugsbereit.
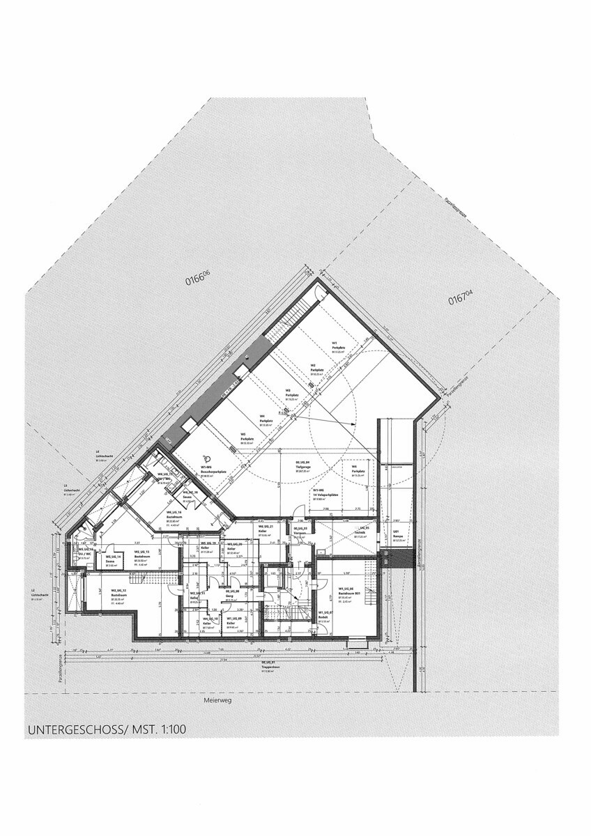
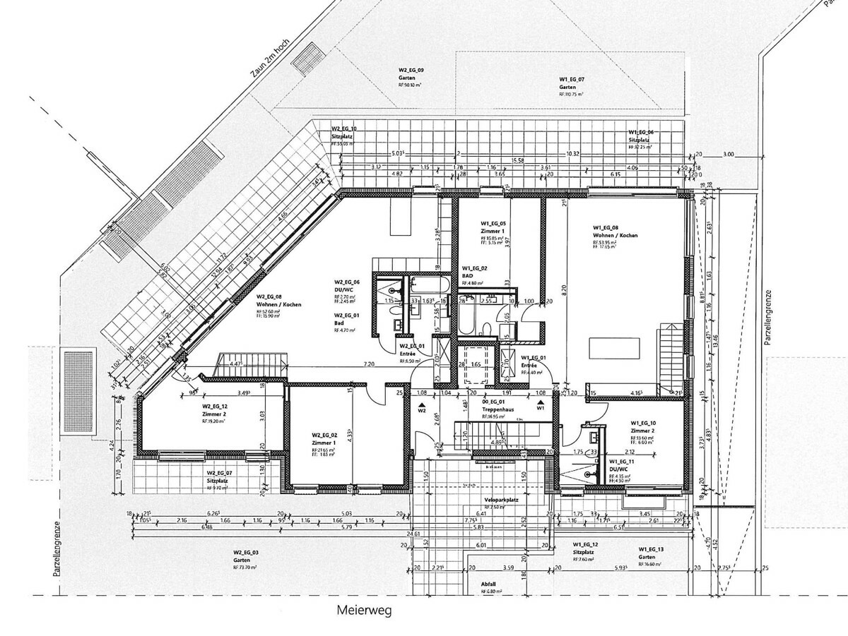
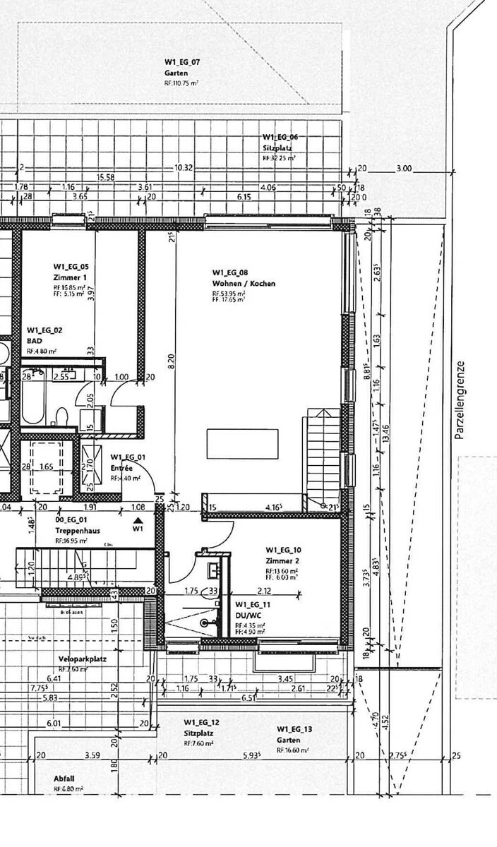
3.5-Zimmer Gartenwohnung (W1) + ausgebautes Fitness-, Hobby-, Bastel-, Gästezimmer im UG mit direktem Treppenzugang und grossem Lichtschacht
- Wohnen / Küche
- 2 Schlafzimmer
- 1 Nasszone, BAD/WC
- 1 Nasszone, DU/WC
- Sitzplatz
- Hobbyraum - Ausführung analog Zimmerausstattung
- Keller
- Gartenanteil 126 m2
Budget:
- Kücheneinrichtung: CHF 35'000.- brutto inkl. MwSt.
- Sanitärapparate: CHF 25'000.- brutto inkl. MwSt.
Verwirklichen Sie gemeinsam mit uns Ihren Wohntraum.
Wenn Sie Ideen und Wünsche bezüglich der Gestaltung des Grundrisses haben, werden wir diese gerne für Sie realisieren, soweit technisch möglich.
Riehen ist in erster Linie eine erstklassige Wohngemeinde und besitzt zwei Zentren, das Dorfzentrum "Riehen Dorf" und das kleinere Zentrum im Niederholz.
Mit einem ausgezeichneten Angebot an Öffentlichem Verkehr (ÖV) ist Riehen bestens mit den umliegenden Gemeinden verbunden. Zudem wurde die Gemeinde als erste Energiestadt Europas mit dem Label Energy Award in Gold" ausgezeichnet.
Weitere Angaben über Riehen finden Sie unter www.riehen.ch.
Bildung
- Kita und Kindergarten befinden sich in unmittelbarer Nähe
- Weiterführende Schulen sind in Riehen
- Das Gymnasium «Bäumlihof» ist mit dem Fahrrad in weniger als 10 Minuten erreicht
Einkaufsmöglichkeiten und weitere Dienstleistungen
Detailhändler wie Coop Migros, Denner und Dienstleistungen für den täglichen Bedarf wie Bäckereien, Banken, Post und zahlreiche weitere Fachgeschäfte finden Sie sowohl in "Riehen Dorf" wie auch an der Rauracherstrasse in Riehen.
Öffentlicher Verkehr (ÖV)
Die Tramhaltestelle der Linien 2 und 6 «Burgstrasse» und die Bushaltestelle der Linien 34, 35 und 45 «Mühlestieg» sind wenige Gehminuten entfernt.
Privater Verkehr (MIV)
Naherholungsgebiete, das Zentrum von Basel und die umliegenden Gemeinden sind mit dem Auto bequem erreichbar. Bis zur Autobahn sind es ca. 4 km.
Bei Interesse erhalten Sie gerne weitere Unterlagen:
- Pläne
- Baubeschreibung inkl. Zahlungsplan
- Reservationsvertrag
- Kaufvertrag als Entwurf
- Stockwerkbegründung als Entwurf
Haben wir Ihr Interesse geweckt?
Gerne stehen wir Ihnen für ein persönliches und unverbindliches Gespräch zur Verfügung - wir freuen uns auf Ihre Kontaktaufnahme.
Die Baubewilligung wurde bereits erteilt.
Ab Juni 2025 sind die Wohnungen einzugsbereit.
3.5-Zimmer Gartenwohnung (W1) + ausgebautes Fitness-, Hobby-, Bastel-, Gästezimmer im UG mit direktem Treppenzugang und grossem Lichtschacht
- Wohnen / Küche
- 2 Schlafzimmer
- 1 Nasszone, BAD/WC
- 1 Nasszone, DU/WC
- Sitzplatz
- Hobbyraum - Ausführung analog Zimmerausstattung
- Keller
- Gartenanteil 126 m2
Budget:
- Kücheneinrichtung: CHF 35'000.- brutto inkl. MwSt.
- Sanitärapparate: CHF 25'000.- brutto inkl. MwSt.
Verwirklichen Sie gemeinsam mit uns Ihren Wohntraum.
Wenn Sie Ideen und Wünsche bezüglich der Gestaltung des Grundrisses haben, werden wir diese gerne für Sie realisieren, soweit technisch möglich.
Riehen ist in erster Linie eine erstklassige Wohngemeinde und besitzt zwei Zentren, das Dorfzentrum "Riehen Dorf" und das kleinere Zentrum im Niederholz.
Mit einem ausgezeichneten Angebot an Öffentlichem Verkehr (ÖV) ist Riehen bestens mit den umliegenden Gemeinden verbunden. Zudem wurde die Gemeinde als erste Energiestadt Europas mit dem Label Energy Award in Gold" ausgezeichnet.
Weitere Angaben über Riehen finden Sie unter www.riehen.ch.
Bildung
- Kita und Kindergarten befinden sich in unmittelbarer Nähe
- Weiterführende Schulen sind in Riehen
- Das Gymnasium «Bäumlihof» ist mit dem Fahrrad in weniger als 10 Minuten erreicht
Einkaufsmöglichkeiten und weitere Dienstleistungen
Detailhändler wie Coop Migros, Denner und Dienstleistungen für den täglichen Bedarf wie Bäckereien, Banken, Post und zahlreiche weitere Fachgeschäfte finden Sie sowohl in "Riehen Dorf" wie auch an der Rauracherstrasse in Riehen.
Öffentlicher Verkehr (ÖV)
Die Tramhaltestelle der Linien 2 und 6 «Burgstrasse» und die Bushaltestelle der Linien 34, 35 und 45 «Mühlestieg» sind wenige Gehminuten entfernt.
Privater Verkehr (MIV)
Naherholungsgebiete, das Zentrum von Basel und die umliegenden Gemeinden sind mit dem Auto bequem erreichbar. Bis zur Autobahn sind es ca. 4 km.
Bei Interesse erhalten Sie gerne weitere Unterlagen:
- Pläne
- Baubeschreibung inkl. Zahlungsplan
- Reservationsvertrag
- Kaufvertrag als Entwurf
- Stockwerkbegründung als Entwurf
Haben wir Ihr Interesse geweckt?
Gerne stehen wir Ihnen für ein persönliches und unverbindliches Gespräch zur Verfügung - wir freuen uns auf Ihre Kontaktaufnahme.
Comodità
Dintorni
- Bambini benvenuti
Esterno
- Garage
Interno
- Ascensore
Dotazione
- Connessione internet
Vista
- Bella vista
Distanze
Trasporti pubblici
400 m
Autostrada
4 km
Asilo
800 m
Scuola primaria
800 m
Scuola secondaria
1.9 km
Negozi
400 m









