Descrizione
Der Bau hat begonnen und bald werden wir bereits die Bodenplatte EG betonieren (s. auch Fotos).
Verwirklichen Sie gemeinsam mit uns Ihren Wohntraum.
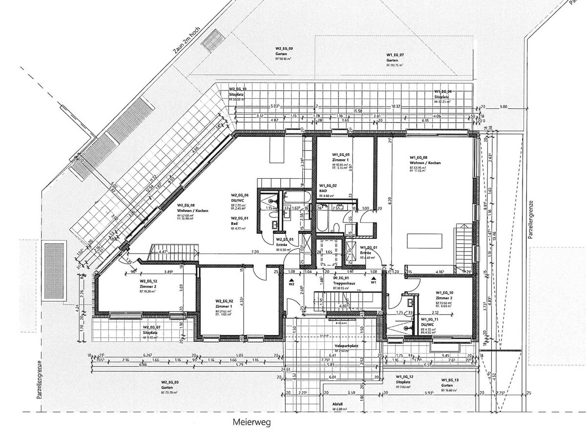
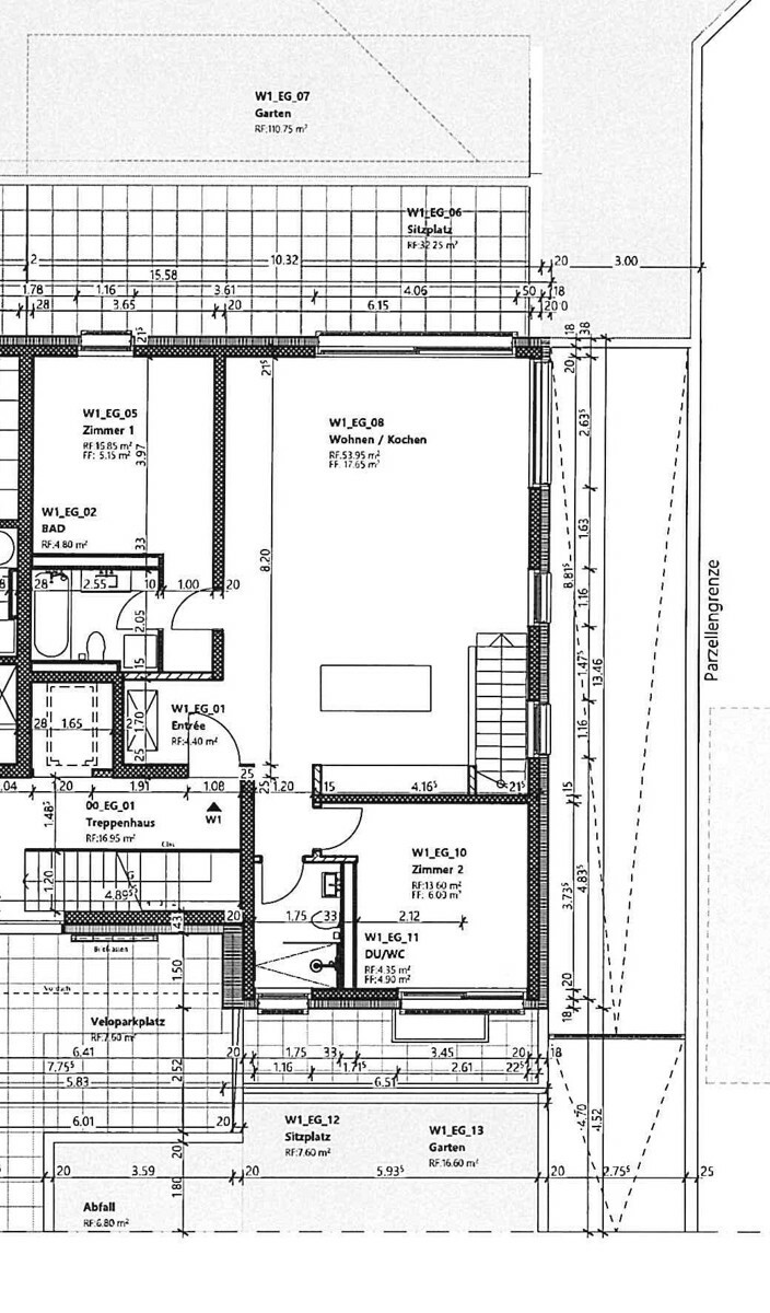
Dieser elegante und hochwertige Neubauprojekt befindet sich an guter und sonniger Wohnlage am Meierweg 72 in Riehen. Das Mehrfamilienhaus verfügt über 6 topmoderne Eigentumswohnungen in gehobenem Standard, mit Hobbyräumen und für jede Wohnung einen Gartenanteil zur privater Nutzung.
Ab Juni 2025 sind die Wohnungen einzugsbereit.
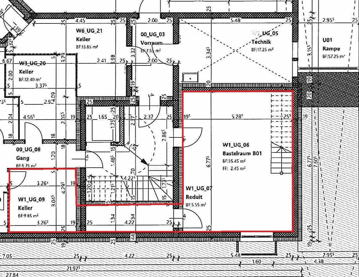
3.5-Zimmer Gartenwohnung (W1) + ausgebautes Fitness-, Hobby-, Bastel-, Gästezimmer im UG mit direktem Treppenzugang und grossem Lichtschacht:
- grosszügiges Wohnen-Essen mit offener, moderner Küche
- 2 Schlafzimmer
- 1 Nasszone BAD/WC
- 1 Nasszone DU/WC
- grosser Sitzplatz
- heller, grosser Hobbyraum - Ausführung analog Zimmerausstattung
- Kellerabteil mit direkter Verbindung zur Wohnung
- Gartenanteil ums Haus 126 m2
Budget:
- Kücheneinrichtung: CHF 35'000.- brutto inkl. MwSt.
- Sanitärapparate: CHF 25'000.- brutto inkl. MwSt.
Haben wir definitiv Ihr Interesse geweckt?
Dann rufen Sie entweder Herrn Beurret direkt auf seinem Handy unter 079 645 88 36 an
oder füllen Sie bitte das Anmeldeformular auf einer der Internetplattform oder auf unserer Webseite aus, damit wir Ihnen unverzüglich alle gewünschten Unterlagen zustellen können.
Riehen ist in erster Linie eine erstklassige Wohngemeinde und besitzt zwei Zentren, das Dorfzentrum "Riehen Dorf" und das kleinere Zentrum im Niederholz.
Mit einem ausgezeichneten Angebot an Öffentlichem Verkehr (ÖV) ist Riehen bestens mit den umliegenden Gemeinden verbunden. Zudem wurde die Gemeinde als erste Energiestadt Europas mit dem Label Energy Award in Gold" ausgezeichnet.
Weitere Angaben über Riehen finden Sie unter www.riehen.ch.
Bildung
- Kita und Kindergarten befinden sich in unmittelbarer Nähe
- Weiterführende Schulen sind in Riehen
- Das Gymnasium «Bäumlihof» ist mit dem Fahrrad in weniger als 10 Minuten erreicht
Einkaufsmöglichkeiten und weitere Dienstleistungen
Detailhändler wie Coop Migros, Denner und Dienstleistungen für den täglichen Bedarf wie Bäckereien, Banken, Post und zahlreiche weitere Fachgeschäfte finden Sie sowohl in "Riehen Dorf" wie auch an der Rauracherstrasse in Riehen.
Öffentlicher Verkehr (ÖV)
Die Tramhaltestelle der Linien 2 und 6 «Burgstrasse» und die Bushaltestelle der Linien 34, 35 und 45 «Mühlestieg» sind wenige Gehminuten entfernt.
Privater Verkehr (MIV)
Naherholungsgebiete, das Zentrum von Basel und die umliegenden Gemeinden sind mit dem Auto bequem erreichbar. Bis zur Autobahn sind es ca. 4 km.
Verwirklichen Sie gemeinsam mit uns Ihren Wohntraum.
Dieser elegante und hochwertige Neubauprojekt befindet sich an guter und sonniger Wohnlage am Meierweg 72 in Riehen. Das Mehrfamilienhaus verfügt über 6 topmoderne Eigentumswohnungen in gehobenem Standard, mit Hobbyräumen und für jede Wohnung einen Gartenanteil zur privater Nutzung.
Ab Juni 2025 sind die Wohnungen einzugsbereit.
3.5-Zimmer Gartenwohnung (W1) + ausgebautes Fitness-, Hobby-, Bastel-, Gästezimmer im UG mit direktem Treppenzugang und grossem Lichtschacht:
- grosszügiges Wohnen-Essen mit offener, moderner Küche
- 2 Schlafzimmer
- 1 Nasszone BAD/WC
- 1 Nasszone DU/WC
- grosser Sitzplatz
- heller, grosser Hobbyraum - Ausführung analog Zimmerausstattung
- Kellerabteil mit direkter Verbindung zur Wohnung
- Gartenanteil ums Haus 126 m2
Budget:
- Kücheneinrichtung: CHF 35'000.- brutto inkl. MwSt.
- Sanitärapparate: CHF 25'000.- brutto inkl. MwSt.
Haben wir definitiv Ihr Interesse geweckt?
Dann rufen Sie entweder Herrn Beurret direkt auf seinem Handy unter 079 645 88 36 an
oder füllen Sie bitte das Anmeldeformular auf einer der Internetplattform oder auf unserer Webseite aus, damit wir Ihnen unverzüglich alle gewünschten Unterlagen zustellen können.
Riehen ist in erster Linie eine erstklassige Wohngemeinde und besitzt zwei Zentren, das Dorfzentrum "Riehen Dorf" und das kleinere Zentrum im Niederholz.
Mit einem ausgezeichneten Angebot an Öffentlichem Verkehr (ÖV) ist Riehen bestens mit den umliegenden Gemeinden verbunden. Zudem wurde die Gemeinde als erste Energiestadt Europas mit dem Label Energy Award in Gold" ausgezeichnet.
Weitere Angaben über Riehen finden Sie unter www.riehen.ch.
Bildung
- Kita und Kindergarten befinden sich in unmittelbarer Nähe
- Weiterführende Schulen sind in Riehen
- Das Gymnasium «Bäumlihof» ist mit dem Fahrrad in weniger als 10 Minuten erreicht
Einkaufsmöglichkeiten und weitere Dienstleistungen
Detailhändler wie Coop Migros, Denner und Dienstleistungen für den täglichen Bedarf wie Bäckereien, Banken, Post und zahlreiche weitere Fachgeschäfte finden Sie sowohl in "Riehen Dorf" wie auch an der Rauracherstrasse in Riehen.
Öffentlicher Verkehr (ÖV)
Die Tramhaltestelle der Linien 2 und 6 «Burgstrasse» und die Bushaltestelle der Linien 34, 35 und 45 «Mühlestieg» sind wenige Gehminuten entfernt.
Privater Verkehr (MIV)
Naherholungsgebiete, das Zentrum von Basel und die umliegenden Gemeinden sind mit dem Auto bequem erreichbar. Bis zur Autobahn sind es ca. 4 km.
Comodità
Dintorni
- Bambini benvenuti
Esterno
- Garage
Interno
- Ascensore
Dotazione
- Connessione internet
Vista
- Bella vista
Distanze
Trasporti pubblici
400 m
Autostrada
4 km
Asilo
800 m
Scuola primaria
800 m
Scuola secondaria
1.9 km
Negozi
400 m












