Descrizione
Der Bau hat begonnen und bald werden wir bereits die Bodenplatte EG betonieren (s. auch Fotos).
Verwirklichen Sie gemeinsam mit uns Ihren Wohntraum.
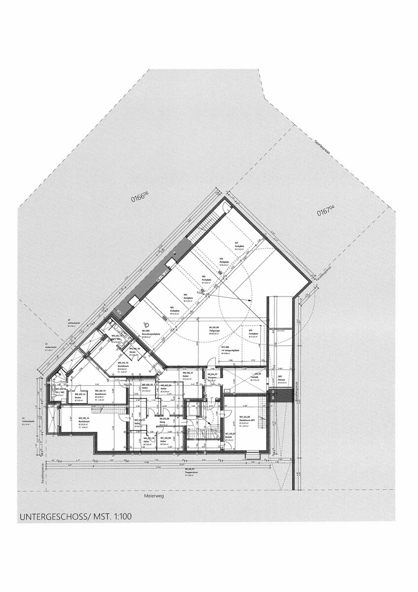
Dieser elegante und hochwertige Neubauprojekt befindet sich an guter und sonniger Wohnlage am Meierweg 72 in Riehen. Das Mehrfamilienhaus verfügt über 6 topmoderne Eigentumswohnungen in gehobenem Standard, mit Hobbyräumen und für jede Wohnung einen Gartenanteil zur privater Nutzung.
Ab Juni 2025 sind die Wohnungen einzugsbereit.
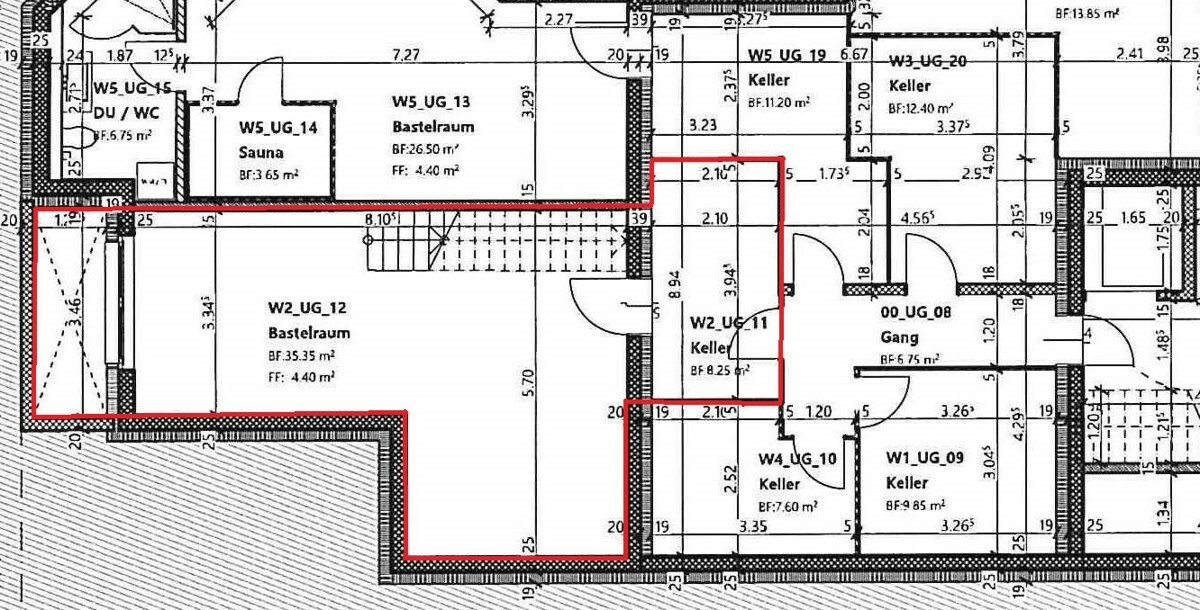
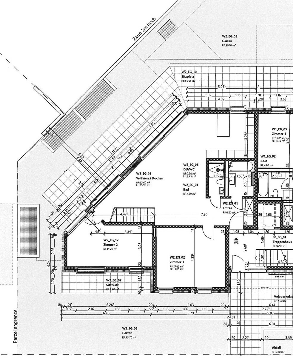
3.5-Zimmer Gartenwohnung (W2) mit direktem Zugang zum ausgebauten Gäste-, Bastel-,Hobby-, Fitnesszimmer im UG und grossem Lichtschacht.
- Wohnen / Küche
- 2 grosszügige Schlafzimmer
- 1 Nasszone mit BAD/WC
- 1 Nasszone mit DU/WC
- grosser, teilweise gedeckter Gartensitzplatz mit Sonnenschutz
- voll ausgebauter Hobbyraum - Ausführung analog Zimmerausstattung
- direkter Zugang vo Hobbyraum in den Keller
- Gartenanteil 163 m2
Budget:
- Kücheneinrichtung: CHF 35'000.- brutto inkl. MwSt.
- Sanitärapparate: CHF 25'000.- brutto inkl. MwSt.
Verwirklichen Sie gemeinsam mit uns Ihren Wohntraum.
Herr Beurret erreichen Sie entweder auf seinem Handy unter 079 645 88 36 oder Sie schicken ihm das Anmeldeformular mit Ihren Koordinaten. Bitte vergessen Sie nicht, uns Ihre Handynummer anzugeben.
Vielen Dank!
Riehen ist in erster Linie eine erstklassige Wohngemeinde und besitzt zwei Zentren, das Dorfzentrum "Riehen Dorf" und das kleinere Zentrum im Niederholz.
Mit einem ausgezeichneten Angebot an Öffentlichem Verkehr (ÖV) ist Riehen bestens mit den umliegenden Gemeinden verbunden. Zudem wurde die Gemeinde als erste Energiestadt Europas mit dem Label Energy Award in Gold" ausgezeichnet.
Weitere Angaben über Riehen finden Sie unter www.riehen.ch.
Bildung
- Kita und Kindergarten befinden sich in unmittelbarer Nähe
- Weiterführende Schulen sind in Riehen
- Das Gymnasium «Bäumlihof» ist mit dem Fahrrad in weniger als 10 Minuten erreicht
Einkaufsmöglichkeiten und weitere Dienstleistungen
Detailhändler wie Coop Migros, Denner und Dienstleistungen für den täglichen Bedarf wie Bäckereien, Banken, Post und zahlreiche weitere Fachgeschäfte finden Sie sowohl in "Riehen Dorf" wie auch an der Rauracherstrasse in Riehen.
Öffentlicher Verkehr (ÖV)
Die Tramhaltestelle der Linien 2 und 6 «Burgstrasse» und die Bushaltestelle der Linien 34, 35 und 45 «Mühlestieg» sind wenige Gehminuten entfernt.
Privater Verkehr (MIV)
Naherholungsgebiete, das Zentrum von Basel und die umliegenden Gemeinden sind mit dem Auto bequem erreichbar. Bis zur Autobahn sind es ca. 4 km.
Bei Interesse erhalten Sie gerne weitere Unterlagen:
- Pläne
- Baubeschreibung inkl. Zahlungsplan
- Reservationsvertrag
- Kaufvertrag als Entwurf
- Stockwerkbegründung als Entwurf
Haben wir Ihr Interesse geweckt?
Gerne stehen wir Ihnen für ein persönliches und unverbindliches Gespräch zur Verfügung - wir freuen uns auf Ihre Kontaktaufnahme.
Verwirklichen Sie gemeinsam mit uns Ihren Wohntraum.
Dieser elegante und hochwertige Neubauprojekt befindet sich an guter und sonniger Wohnlage am Meierweg 72 in Riehen. Das Mehrfamilienhaus verfügt über 6 topmoderne Eigentumswohnungen in gehobenem Standard, mit Hobbyräumen und für jede Wohnung einen Gartenanteil zur privater Nutzung.
Ab Juni 2025 sind die Wohnungen einzugsbereit.
3.5-Zimmer Gartenwohnung (W2) mit direktem Zugang zum ausgebauten Gäste-, Bastel-,Hobby-, Fitnesszimmer im UG und grossem Lichtschacht.
- Wohnen / Küche
- 2 grosszügige Schlafzimmer
- 1 Nasszone mit BAD/WC
- 1 Nasszone mit DU/WC
- grosser, teilweise gedeckter Gartensitzplatz mit Sonnenschutz
- voll ausgebauter Hobbyraum - Ausführung analog Zimmerausstattung
- direkter Zugang vo Hobbyraum in den Keller
- Gartenanteil 163 m2
Budget:
- Kücheneinrichtung: CHF 35'000.- brutto inkl. MwSt.
- Sanitärapparate: CHF 25'000.- brutto inkl. MwSt.
Verwirklichen Sie gemeinsam mit uns Ihren Wohntraum.
Herr Beurret erreichen Sie entweder auf seinem Handy unter 079 645 88 36 oder Sie schicken ihm das Anmeldeformular mit Ihren Koordinaten. Bitte vergessen Sie nicht, uns Ihre Handynummer anzugeben.
Vielen Dank!
Riehen ist in erster Linie eine erstklassige Wohngemeinde und besitzt zwei Zentren, das Dorfzentrum "Riehen Dorf" und das kleinere Zentrum im Niederholz.
Mit einem ausgezeichneten Angebot an Öffentlichem Verkehr (ÖV) ist Riehen bestens mit den umliegenden Gemeinden verbunden. Zudem wurde die Gemeinde als erste Energiestadt Europas mit dem Label Energy Award in Gold" ausgezeichnet.
Weitere Angaben über Riehen finden Sie unter www.riehen.ch.
Bildung
- Kita und Kindergarten befinden sich in unmittelbarer Nähe
- Weiterführende Schulen sind in Riehen
- Das Gymnasium «Bäumlihof» ist mit dem Fahrrad in weniger als 10 Minuten erreicht
Einkaufsmöglichkeiten und weitere Dienstleistungen
Detailhändler wie Coop Migros, Denner und Dienstleistungen für den täglichen Bedarf wie Bäckereien, Banken, Post und zahlreiche weitere Fachgeschäfte finden Sie sowohl in "Riehen Dorf" wie auch an der Rauracherstrasse in Riehen.
Öffentlicher Verkehr (ÖV)
Die Tramhaltestelle der Linien 2 und 6 «Burgstrasse» und die Bushaltestelle der Linien 34, 35 und 45 «Mühlestieg» sind wenige Gehminuten entfernt.
Privater Verkehr (MIV)
Naherholungsgebiete, das Zentrum von Basel und die umliegenden Gemeinden sind mit dem Auto bequem erreichbar. Bis zur Autobahn sind es ca. 4 km.
Bei Interesse erhalten Sie gerne weitere Unterlagen:
- Pläne
- Baubeschreibung inkl. Zahlungsplan
- Reservationsvertrag
- Kaufvertrag als Entwurf
- Stockwerkbegründung als Entwurf
Haben wir Ihr Interesse geweckt?
Gerne stehen wir Ihnen für ein persönliches und unverbindliches Gespräch zur Verfügung - wir freuen uns auf Ihre Kontaktaufnahme.
Comodità
Dintorni
- Bambini benvenuti
Esterno
- Garage
Interno
- Accesso persone disabili
- Ascensore
Dotazione
- Connessione internet
Vista
- Bella vista
Distanze
Trasporti pubblici
400 m
Autostrada
4 km
Asilo
800 m
Scuola primaria
800 m
Scuola secondaria
1.9 km
Negozi
400 m









