Beschreibung
Willkommen in Ihrem neuen modernen Zuhause. Eine seltene Gelegenheit auf dem Immobilienmarkt Basel, eine sanierte und moderne Altbauwohnung im obersten Stockwerk mit Lift zu erwerben. Auf den nächsten Seiten erhalten sie alle nötigen Informationen zu Ihrer neuen ruhigen Maisonettewohnung in zentraler Lage im St. Johann.
Lage
Willkommen im lebendigen Quartier St. Johann.
Im Herzen von Basel liegt das charmante Quartier St. Johann, ein Viertel, das Geschichte, Kultur und modernes Leben harmonisch vereint. St. Johann ist nicht nur eines der ältesten Quartiere der Stadt, sondern auch ein Ort voller Dynamik und Vielfalt.
Das historisches Juwel St. Johann, besticht durch seine historische Architektur, die bis ins Mittelalter zurückreicht. Spazieren Sie durch die malerischen Strassen, und entdecken Sie prächtige Bürgerhäuser, verwinkelte Gassen und beeindruckende Sakralbauten. Der namensgebende Johanniterkomplex und die imposante Kirche St. Johann sind Zeugnisse der reichen Geschichte dieses Viertels.
Moderne Lebensqualität: trotz seiner historischen Wurzeln ist das St. Johann ein modernes und lebendiges Quartier. Zahlreiche Einkaufsmöglichkeiten, von kleinen Boutiquen bis hin zu Supermärkten, bieten alles, was das Herz begehrt. Das breite gastronomische Angebot reicht von gemütlichen Cafés bis hin zu erstklassigen Restaurants, die internationale und lokale Köstlichkeiten servieren.
Kulturell hat St. Johann viel zu bieten. Zahlreiche Galerien, Theater und Museen laden zum Entdecken ein. Der St. Johannspark und der Rhein bieten ideale Orte für Entspannung und Freizeitaktivitäten im Freien. Besonders beliebt sind die regelmässigen Märkte und Veranstaltungen, die das Quartier noch lebendiger machen.
Das St. Johann ist optimal an das Verkehrsnetz angebunden. Mit den öffentlichen Verkehrsmitteln erreichen Sie das Stadtzentrum von Basel in wenigen Minuten. Auch der Bahnhof und der Flughafen sind schnell und unkompliziert erreichbar, was das Quartier besonders attraktiv für Berufspendler macht.
Das Quartier zeichnet sich durch seine weltoffene und lebendige Gemeinschaft aus. Hier leben Menschen aus verschiedenen Kulturen und Altersgruppen harmonisch zusammen. Das vielfältige Vereinsleben und die zahlreichen Nachbarschaftsinitiativen fördern den sozialen Zusammenhalt und machen St. Johann zu einem besonders lebenswerten Ort.
Erleben Sie das besondere Flair des Basler Quartiers St. Johann. Ob als junger Berufstätiger, Familie oder Ruheständler – hier finden Sie ein Zuhause, das Tradition und Moderne, Ruhe und Lebendigkeit perfekt verbindet.
Zugang
Die Liegenschaft ist von der Nord-Ostseite zugänglich. Vor der Liegenschaft befindet sich ein Platz für die Fahrräder. Zur Hinterseite der Liegenschaft besteht ein kleiner Innenhof zur gemeinsamen Nutzung.
Geschäfte
In direkter Nähe zur Liegenschaft befinden sich diverse Geschäfte und ein vielseitiges Einkaufsangebot. Einkaufsläden und eine Vielzahl an Restaurants erreichen Sie bequem zu Fuss. Für ein umfangreiches Shoppingerlebnis finden Sie in der Innenstadt von Basel alles, was das Herz begehrt.
Verkehrsanbindung
Die Wattstrasse ist mit den Tramlinien Nr. 1 +11 sowie im Umfeld mit div. Buslinien sowie dem Bahnhof St. Johann verbunden. Alle wichtigen Orte der Region, unter anderem den Bahnhof SBB, den Flughafen EuroAirport (Bus Nr. 50) und die Innenstadt erreichen Sie bequem und schnell mit den öffentlichen Verkehrsmitteln.
Basel ist bekannt für sein ausgedehntes Netz an Fahrradwegen, was die Fortbewegung mit dem Fahrrad sicher und angenehm gestaltet.
Für Autofahrer ist die Wohnung ebenfalls gut gelegen. Über die Elsässerstrasse und die Johanniterbrücke ist die Innenstadt schnell erreichbar. Die Autobahnen A2 und A3 bieten Verbindungen in die gesamte Schweiz sowie nach Deutschland und Frankreich. Öffentliche Parkmöglichkeiten sind in der Umgebung vorhanden. Es besteht aber auch immer wieder die Option Garagen in fussläufiger Distanz zu mieten.
Freizeit
Viele Angebote sind in der Stadt Basel und in der Agglomeration zu finden. Die Stadt Basel überzeugt mit diversen temporären Veranstaltungen (Art Basel, Bâloise-Session, Tattoo Basel, Basler Fasnacht Weltkulturerbe uvm.), sowie festen Kulturstätten wie das Theater, Kinos, über 40 Museen und vielem mehr. In fussläufiger Entfernung erreicht man den Kannenfeldpark, Voltamatte und den St. Johannspark.
Konstruktion
Das Mehrfamilienhaus mit 5 Wohnunen ist in damals typischer Massivbauweise erstellt. Die Liegenschaft wurde 2001 totalsaniert und ist in Stockwerkeinheiten aufgeteilt worden. Beheizt wird die Liegenschaft mittels Fernwärme.
Unteres Erdgeschoss
Das Untergeschoss bietet Platz für Haustechnik und die Kellerabteile. Über das Untergeschoss erreicht man den kleinen Sitzplatz/Gartenanteil zur Gebäuderückseite, der allen Bewohnenden zur Verfügung steht. Der Innenhof mit Kiesplatz ist von Grün umgeben.
Erdgeschoss
Im Sockelgeschoss der Liegenschaft befindet sich der Eingangsbereich für die Wohnungen. Das Treppenhaus wurde für einen Fahrstuhl aufgegeben resp. es wird das Treppenhaus der Nachbarsliegenschaft genutzt. So verfügen die beiden Liegenschaften jeweils über den Fahrstuhl und das Treppenhaus. Die Kosten werden entsprechend aufgeteilt.
Dachgeschoss
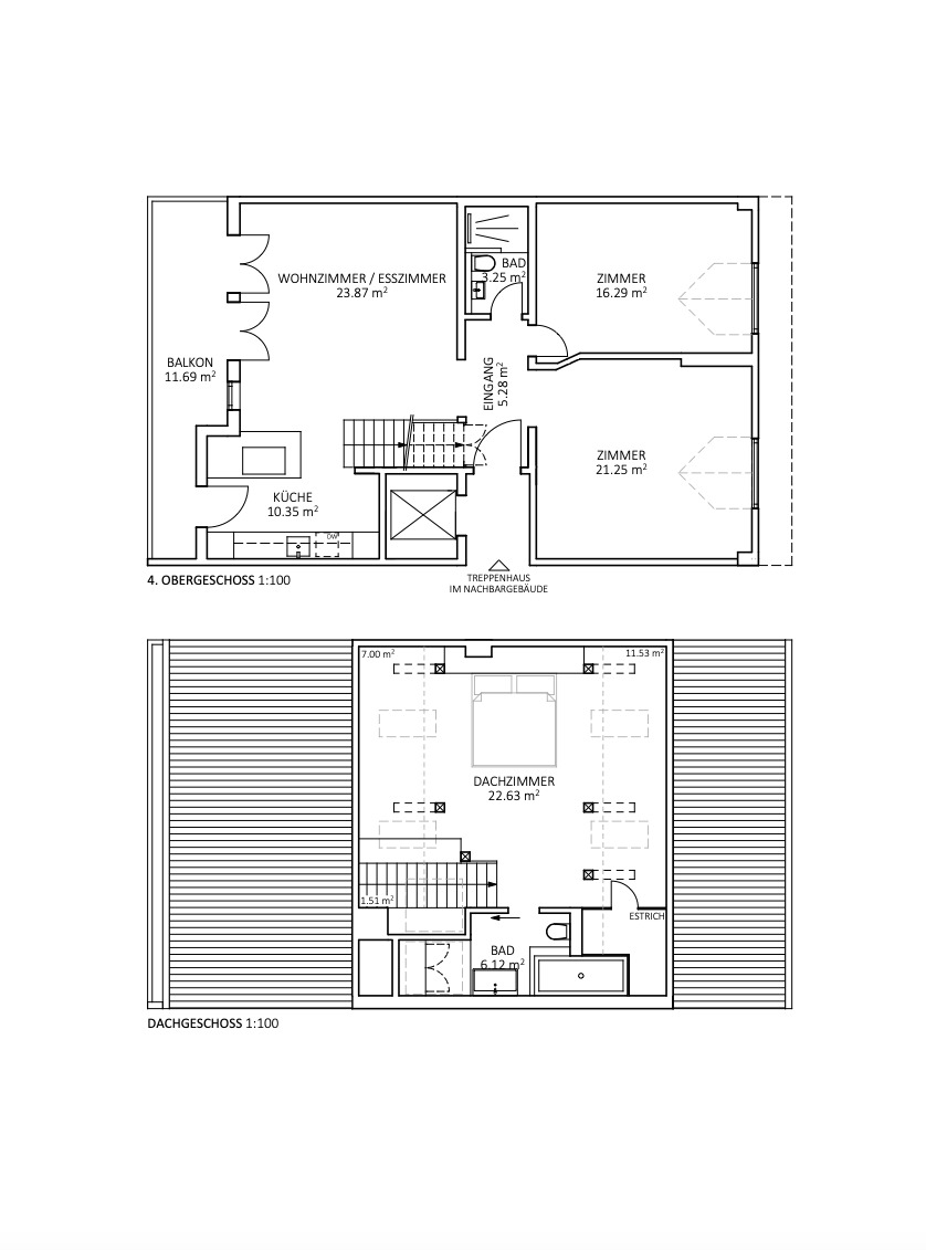
Die Wohnung, welche sich über zwei Stockwerke erstreckt, befindet sich im 4. OG resp. durch die Dachform im Dachgeschoss der Liegenschaft. Zur Wohnung gehört ein Kellerraum im UG. Die Wohnung, welche per Lift und Treppenhaus erreichbar ist, verfügt über Fenster zur Nordost und Südwestseite, welche für viel Tageslicht und eine angenehme Wohnatmosphäre sorgen. Die Maisonettewohnung besteht in der ersten Etage aus dem Eingangsbereich, einem Badezimmer mit Dusche sowie zwei Zimmern zur Nordostseite. Zur Südwestseite befindet sich der offenen Wohn- und Essbereich mit offener Küche und grossem Balkon. Vom Wohnbereich erreicht man über eine Treppe das 2. Dachgeschoss, welches zu einem Zimmer mit Nasszelle ausgebaut ist. Durch die grossen Dachflächenfenster ist das Zimmer und das Badezimmer mit Badewanne sehr hell. Die Wohnung wurde im Jahr 2021 umfassend saniert. Bei der Sanierung wurden diverse unnutzbare Flächen mit Einbaumöbeln/Schränken versehen, und die Wohnung verfügt somit über viel Stauraum.
Die Wohnung besticht durch einen sehr modernen Ausbau. Durch die Lage im obersten Stockwerk und dem grossen Innenhof, verfügt man über einen schönen Weitblick über das Quartier.
2021 wurde die Wohnung umfassend saniert:
- Die Küche wurde zum Essbereich hin geöffnet und mit neuer Küche, Kochinsel und Waschmaschine versehen. Die Küche verfügt über viele Highlights wie Quooker, Bora Kochfeld mit integriertem Abzug, Backofen, Steamer, Geschirrspühler, Kühlschrank - Alle Geräte von V-Zug
- Neue Treppe mit integrierter Garderobe und zusätzlichem Stauraum im Treppeninnenraum beim Eingangsbereich
- Zwei neue Badezimmer mit fugenlosem Anstrich vom Boden bis zur Decke
- Neue Zimmertüren
- Neue Eingangstür mit Schallschutz und Sicherheitsgarnitur
- Neue Terrassenplatten
- Neues Eichenparkett in der ganzen Wohnung (im Wohnzimmer ist ein Teppich aufgelegt als Schutz / kann entfernt werden)
- Neue Einbauschränke im Dachgeschosszimmer
- Neue Einbaukommode im Dachgeschosszimmer
- Anpassung Elektrik
- Neue Verdunkelungsrollos für Velux Dachflächenfenster
- Ersatz sämtlicher Fenster- und Türdichtungen
- Sämtliche Armaturen wurden durch schwarze Armaturen ersetzt (Fenstergriffe, usw)
- Wohnung wurde vollständig neu gemalt inkl. Heizkörper, Fenster sowie neue Lasierung der Sichtbalken im DG
- Neubezug der Marquise
Die Wohnung präsentiert sich in einem sehr guten Zustand und es sind, abgesehen von einzelnen Ausbesserungsarbeiten durch den Maler, mit keinen notwendigen Investitionen in der Wohnung zu rechnen.
Aussenbereich
Zur Südwestseite der Liegenschaft besteht eine kleine Hinterhof-Gartenfläche. Die Bewohnenden erreichen den Hinterhof über den Ausgang bei den Kellerräumen im Untergeschoss. Die Liegenschaft verfügt über keine eigenen Parkplätze oder Garagen. Vor der Liegenschaft besteht ein Fahrradabstellplatz.
Besonderheiten
Die Wohnung ist im Stockwerkeigentum.
Der Anteil der Wohnung beträg 224/1000 Miteigentumsanteil an der Hauptparzelle.
Die Allgemeinkosten der Einheit pro Jahr stellen sich aktuell wie folgt zusammen:
ca. CHF 1'425.- für Heizkosten
ca. CHF 3'700.- für Betriebskosten
ca. CHF 520.- für Liftkosten
ca. CHF 850.- Einzahlung Erneuerungsfonds inkl. Lift-EF
Total rd. CHF 6'495.- Nebenkosten p.a. was rd. 540.- pro Monat entspricht
Der Erneuerungsfond beträgt aktuell CHF 67'396.- per 31.03.2025 für alle Einheiten.
Der Lift, welcher mit dem Nachbarhaus geteilt wird wird über eine Vollservicevertrag ( Service + Reparaturen inkl.) gewartet. Die Kosten werden durch beide MFH getragen. Ebenso wird in einen sep. Erneuerungsfond Lift durch beiden Liegenschaften einbezahlt. Die Kostens und Einzahlung sind in den vorgenannten Budgetpositionen enthalten.
Die aktuellen Besitzer mieten zwei externe Garagen in fussläufiger Distanz, gerne kann bei Bedarf angefragt werden, ob der Mietvertrag übernommen werden kann.
Bemerkungen
Lassen Sie sich bei einer unverbindlichen Besichtigung überzeugen, und finden Sie Ihr neues Zuhause.
Aus Respekt gegenüber den Eigentümern und Mietern bitten wir Sie, das Grundstück nicht ohne Termin mit dem Makler zu betreten.
Fragen? Ihr Ansprechpartner steht Ihnen gerne zur Verfügung:
Samuel Grossen, ImmoMensch GmbH
samuel.grossen@immomensch.ch
direkt +41 61 599 76 00
Eigenschaften
Umgebung
- Stadtzentrum
- Park
- Wohnquartier
- Geschäfte
- Einkaufsmöglichkeiten
- Bank
- Post
- Restaurant(s)
- Apotheke
- Bahnhof
- Bushaltestelle
- Tramhaltestelle
- Autobahnanschluss
- Spielplatz
- Kinderkrippe
- Kindergarten
- Primarschule
- Sekundarschule
- Kantonsschule/Gymnasium
- Hochschule
- Internationale Schulen
- Sportzentrum
- Hallenbad
- Radweg
- Museum
- Kino
- Veranstaltungsort
- Religiöse Bauten
- Krankenhaus / Klinik
- Nahe einer Zollgrenze
Aussenbereich
- Balkon(e)
- Garten
- Ruhige Lage
Innenbereich
- Lift
- Offene Küche
- Keller
- Einbauschrank
- Dreifachverglasung
- Hell
- Dachfenster
- Lichtdurchflutet
- Natürliches Licht
- Sichtbalken
- Mit Charme
Ausstattung
- Moderne Küche
- Kochinsel
- Induktionsherd
- Backofen
- Steamer
- Kühlschrank
- Tiefkühler
- Waschmaschine
- Dusche
- Badewanne
- Telefon
- Glasfaser
- Gegensprechanlage
Boden
- Parkett
Zustand
- Neuwertig
- Abnahme im Ist-Zustand
Ausrichtung
- Süden
- Osten
- Westen
Besonnung
- Gut
- Ganzer Tag besonnt
- Morgensonne
- Abendsonne
Aussicht
- Schöne Aussicht












