Beschreibung
Deutsch
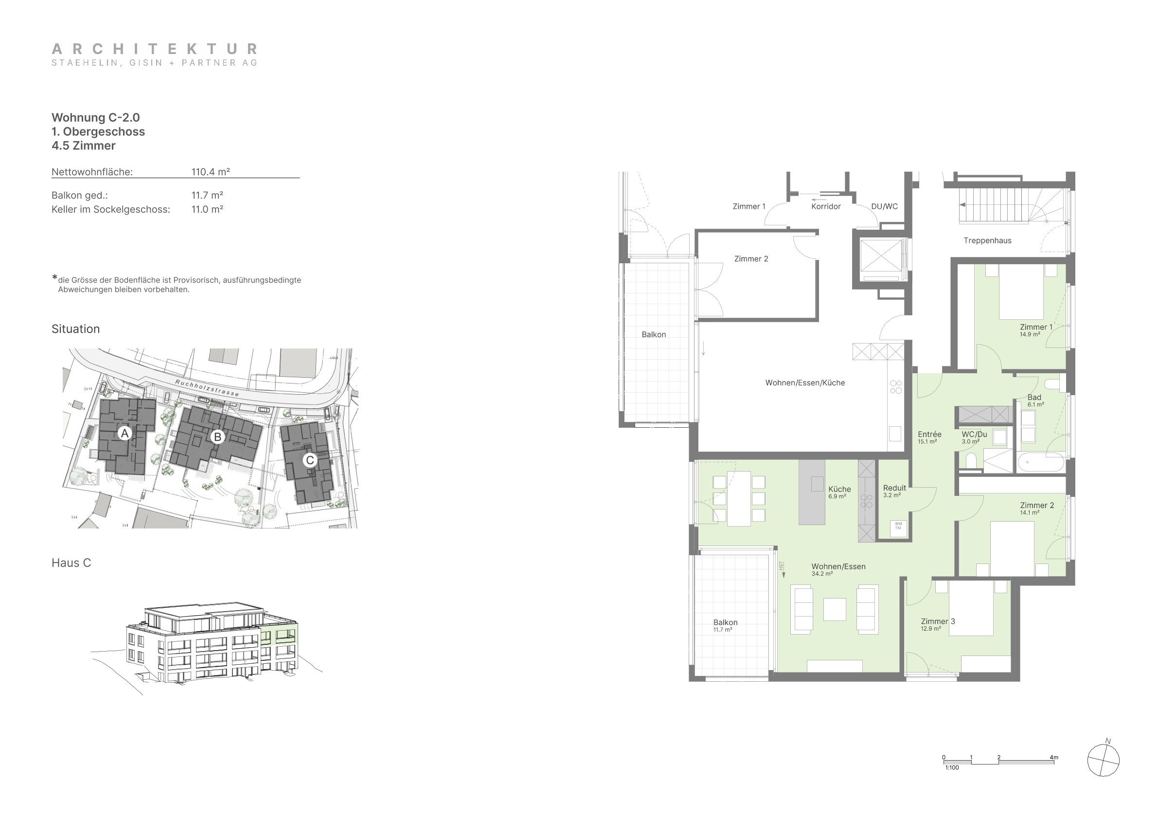
Willkommen in Ihrer neuen Traumwohnung an der Ruchholzstrasse!
Diese stilvolle, moderne 4.5-Zimmer-Wohnung bietet Ihnen 110 m² puren Wohnkomfort im 1. Obergeschoss mit viel Licht und Ausblick! Perfekt für Paare, Familien, die ein modernes und ruhiges Zuhause suchen, oder ein ideales Angebot zum Wohnen und Arbeiten.
Im Obergeschoss befinden sich:
- der Eingang mit Garderobe
- Badzimmer mit Dusche und WC
- ein zweites Badzimmer mit Badewanne und WC
- drei Schlafzimmer
- helles Wohn-Esszimmer mit offener Küche
- sonniger Balkon gegen Südwesten
Im Sockelgeschoss befindet der grosszügige Keller (11 m2).
Die Umgebung ist ideal für Familien, mit einer Vielzahl von Schulen und Spielplätzen in der Nähe. Die Wohnung liegt in einem charmanten Dorf, doch sind Geschäfte, Restaurants und eine Apotheke nur einen Katzensprung entfernt. Perfekte Anbindungen an Bus und Tram sowie die Nähe zur Autobahn machen Ihre täglichen Wege zum Vergnügen.
Geniessen Sie das Leben im Grünen mit dem Komfort urbaner Annehmlichkeiten direkt vor der Tür. Diese Wohnung ist ein echtes Juwel für alle, die ein gut angebundenes und familienfreundliches Umfeld schätzen. Lassen Sie sich die Gelegenheit nicht entgehen, Ihr neues Kapitel an diesem wunderbaren Ort zu beginnen!
Die weiteren Angebote umfassen drei Maisonette-Gartenwohnungen und zwei Etagenwohnungen im 1. Obergeschoss.
Wollen Sie mehr über das Projekt erfahren? Herr Beurret (079 645 88 36) freut sich über Ihre Mailanfrage.
Eigenschaften
Umgebung
- Dorf
- Ländlich
- Wohnquartier
- Geschäfte
- Einkaufsmöglichkeiten
- Bank
- Post
- Restaurant(s)
- Apotheke
- Bushaltestelle
- Tramhaltestelle
- Autobahnanschluss
- Kinderfreundlich
- Spielplatz
- Kinderkrippe
- Kindergarten
- Primarschule
- Freibad
- Wanderwege
- Radweg
- Krankenhaus / Klinik
- Arzt
- Pflegeheim
Aussenbereich
- Balkon(e)
- Garten im Stockwerkeigentum
- Garten
- Gartensitzplatz
- Öffentlicher Parkplatz
Innenbereich
- Behindertengerecht
- Lift
- Tiefgarage
- Einstellhallenplatz
- Besucherparkplätze
- Offene Küche
- Gäste-WC
- Vorratskammer
- Keller
- Fahrradraum
- Einbauschrank
- Dreifachverglasung
- Hell
Ausstattung
- Moderne Küche
- Kochherd
- Glaskeramik
- Backofen
- Kühlschrank
- Tiefkühler
- Geschirrspüler
- Waschmaschine
- Wäschetrockner
- Badewanne
- Dusche
- Telefon
- W-Lan
- Internetanschluss
- Glasfaser
- Elektrische Rollläden
- Gegensprechanlage
- Elektronisches Türschloss
- Aussenbeleuchtung
- Vollausbau
Boden
- Nach Wahl
- Fliesen
- Parkett
Zustand
- Neu
- Gut
- Sehr gut
- Im Bau
Ausrichtung
- Süden
- Osten
- Westen
Besonnung
- Günstig
- Gut
Aussicht
- Schöne Aussicht
- Freie Aussicht
- Talsicht
- Garten
Stil
- Modern







